Fiu Bridge Collapse Eng Tips
The contractors who designed and built the Florida International University pedestrian bridge that collapsed outside Miami have been fined by OSHA for safety violations. The FIU bridge fell in.
MIAMI -- Construction of the pedestrian bridge that collapsed and killed six people in the Miami area was behind schedule and millions over budget, in part because of a key change in the design and placement of one of its support towers. Documents obtained by The Associated Press through a public-records request show that the Florida Department of Transportation in October 2016 ordered Florida International University (FIU) and its contractors to move one of the bridge's main support structures 11 feet north to the edge of a canal, widening the gap between the crossing's end supports and requiring some new structural design.
- Engineer flagged 'cracking' in Miami bridge 2 days before deadly collapse
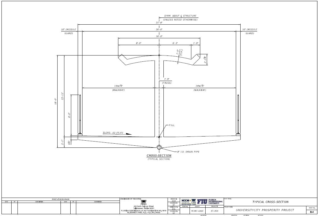
The span's signature, 109-foot-tall pylon was to be built atop a footing, or base, at the northern end of the span. In addition to basic support, its design was also aimed at contributing to the aesthetics of the bridge, which itself was touted as an architectural marvel that would span a busy road and canal to connect the rapidly growing university to the nearby community of Sweetwater. In their winning 2015 proposal, designers said the bridge provided 'spectacular views' for both pedestrians using the bridge and drivers passing beneath it. And they added that the tower could serve as a safety feature because it provided an 'eagle-eyed location' for additional lighting and security cameras.
Videos of the collapse show that the concrete, prefabricated segment of the bridge started crumbling on the same end of the span where the tower redesign occurred, two days after an engineer on the project reported cracks in the same location. The segment that failed had been placed atop the pylon's footing, and the taller tower section was to be installed later.
Though it is still unclear if the design change played a role in the failure, emails between the school, contractors, officials with the city of Sweetwater and permitting agencies show a project that ended up behind schedule, which had officials worried that further delays could jeopardize millions in federal Department of Transportation funds.
The National Transportation Safety Board (NTSB) began an investigation last Friday. Officials say crews were applying post-tensioning force on the bridge on the day the accident happened, but aren't clear on whether that caused the bridge to fall. Local authorities have said workers conducted a 'stress test' the day of the collapse.
When the bridge collapsed, the project was already running about $2.6 million over its $9.4 million initial budget, cost-tracking documents from February show. Originally scheduled to be completed in July, the finish date had been pushed back to January 2019.
- Questions raised over construction of pedestrian bridge that collapsed at FIU
Difficulties began in late 2016, when the Florida Department of Transportation emailed project officials saying they needed to move the bridge's signature pylon to allow for future widening of the road, according to the documents. The tower was to be located on the north side between the road and the canal, and was designed to have cables connecting it to the structure below.
'The first option being entertained is providing these extra travel lane (sic) on the north side of SW 8th St.,' wrote Alfred Reyna, a transportation department employee working on the bridge project. 'This first option places the current location of the pylon in conflict with the extra travel lane and would require bridge design modifications.'
After weeks of back and forth, it was decided to move the pylon 11 feet to the north, sitting near the edge of the canal. According to documents, initial costs for the new design were $204,540, with another $402,723 for construction changes. The final cost of the change was not divulged in the documents.

'The city attorney is advising us not to speak about anything to do with the bridge,' said Sandra Antonio, a spokeswoman for the city of Sweetwater, which was working on the bridge project with FIU. The tower was to be located on the Sweetwater side of the project.
Don Silver, a spokesman for Munilla Construction Management, or MCM, the Miami-based construction management firm that won the bridge contract, said the NTSB had forbidden engineers or contractors from talking about the project pending its investigation.
MCM collaborated with Tallahassee-based FIGG Bridge Design on the bridge project. A FIGG spokeswoman, Cheryl Stopnick, said it would be 'inappropriate to discuss specific detail about bridge design' during the investigation.
A spokeswoman for FIU did not immediately respond Tuesday to questions about the pylon relocation in the bridge design.
The U.S. Transportation Secretary Elaine Chao is ordering her department's inspector general to audit the bridge. The Department of Transportation said in a statement Tuesday that Chao wants to know whether the parties involved in the design, construction and testing of the newly-installed bridge complied with standards required of projects that receive federal funding.
While the NTSB is in the early stages of its investigation, multiple engineers who reviewed the documents obtained by the AP said moving the tower after the bridge's initial design invited errors.
Henry Petroski, a professor of civil engineering at Duke University and a leading authority on engineering failures, said even seemingly minor changes in a bridge's design can lead to failures.
'Once a design is completed, subsequent modifications tend to be suggested and approved without the full care that went into the original design. This has happened time and again in bridges and other engineering structures,' he said.
The documents show that further time pressures were put on the tower redesign by construction delays due to a bottleneck at the U.S. Army Corps of Engineers. The Corps was in charge of permitting certain aspects of the new tower's footing and other elements but had stopped issuing permits due to federal budget cuts. Documents show the contractors wouldn't begin work on the new tower until the Corp's permits were finished, and FIU was worried the delays could jeopardize federal funding.
Kenneth Jessell, a senior vice president for financial affairs at FIU, in 2017 expressed worries that the delays would jeopardize federal TIGER funds for the university's massive transportation redesign, of which the bridge was a key part.
When told the permits would likely come through soon, he expressed relief. 'This is a new learning experience for FIU so I appreciate your patience and guidance,' he said, referring to the scope of the bridge-building project.

Meeting minutes from February also show that MCM had hired extra personnel after another contractor complained of delays.
Bridge engineers who reviewed photographs of the collapse and design schematics associated with moving the bridge's main tower said it was ill-advised to move it after the initial design was complete, but that more analysis was warranted before it could be known whether this played a role in the collapse.
Robert Bea, an emeritus engineering professor at the University of California, Berkeley, said the base of the tower may have been more flexible after it was moved closer to the canal. This could have created more stress on the bridge section that collapsed when crews removed temporary supports from beneath it so traffic could resume, he said.
'At this time, I do not think the movement of the footing for the pylon to the north was a primary factor in the failure. However, the movement of the footing led to the requirement for one of the temporary steel supports to be relocated to be able to travel on the highway,' he said.
As these new developments come to light, families are still searching for answers to the deadly incident.
Joe Smitha's niece, Alexa Duran, died in Thursday's bridge collapse.
'We all were in shock, obviously, the whole family,' Smitha said.
He's demanding an explanation into how this disaster could have happened. 'I want to see some people be responsible. I want to see some people come up and step up and say, 'Hey the buck stops with me,' Smitha said.
'At the core of this investigation is: how did this happen? How could this happen?' asked Matt Morgan, an attorney who represents a client who was injured in the collapse. 'I believe that once the cracks were identified, the first step which should have occurred was that the lanes of travel should have been closed immediately until there was the solution and those cracks were repaired.'
FIU and its contractors say they will cooperate with the ongoing NTSB investigation.
'We have a sense of urgency of getting to the bottom of this accident,' FIU president Mark Rosenberg said. 'Right now, our focus is on the victims' families and doing everything in our power to comfort and support them.'
Sen. Marco Rubio, R-Florida, said the tightening of the bridge's inner cables could have contributed to the collapse. But he said more testing needs to be done by the NTSB.
What to Know
When questions arose, FIGG assured the others there was no concern with safety, according to minutes prepared by its construction contractor
Text messages, photos and other data stored on a cellphone used by the engineer of record on the doomed Florida International University pedestrian bridge could be key evidence in understanding why the bridge collapsed.
But there’s a big problem with getting that evidence: three months after the collapse, the phone used by the most important engineer on the project suffered “water damage” before anyone tried to back up its contents.
That’s what lawyers for the engineer’s employer, FIGG Bridge Engineers, are telling a state court handling lawsuits against FIGG and others involved in the project.
But, after hearing testimony from FIGG vice president C. Denney Pate -- who said his wife accidentially washed his phone with his laundry one year ago -- Miami-Dade Circuit Judge Jennifer Bailey called FIGG's credibility into question.
FIU Gives Up Claim on MCM Bankruptcy Settlement
FIU announced in court it would relinquish any claim to money it sought in bankruptcy court, as long as all $5 million went to the pool of funds set aside for the victims of the collapse, NBC 6's Tony Pipitone reports.
(Published Wednesday, May 22, 2019)Without questioning Pate's sworn testimony, she did criticize his employer's handling of potential evidence in the case, saying the company 'fundamentally misrepresented' for months the status of the cellphone and its efforts to recover data from it.
'I can’t tell whether any of this is remotely accurate anymore and what might be out there that FIGG hasn’t told us about,' Bailey said.
Bailey scolded FIGG's attorneys in court Wednesday, incredulous that the firm would not have backed up Pate's phone for months after the collapse, even after lawyers ordered the preservation of all potential evidence.
Engineers Dismissed Crack Concerns Morning of FIU Bridge Collapse
Newly released minutes of a meeting held the morning of the FIU bridge collapse reveal engineers dismissed concerns about cracks, assured colleagues it was safe to keep the road below open and said temporary shoring to hold up the bridge as repairs proceeded was not necessary.
(Published Monday, May 6, 2019)'What this evidences is an incredibly cavalier attitude toward the gathering of evidence at the outset of this case,' she said.
When one FIGG lawyer apologized 'for any perception we have not been forthcoming on this,' Bailey interrupted, saying, 'It's not a perception ... it's a done deal.'
FIGG said the National Transportation Safety Board is now aware of the issue with Pate's phone and is expected to issue a subpoena for it any day.
Former Sergeant Battles PTSD 1 Year After FIU Bridge Collapse
Jenna Mendez, who tried to help pull people from the rubble when a bridge collapsed at FIU, is still coping with the tragedy one year later. NBC 6's Tony Pipitone reports.
(Published Friday, March 15, 2019)Bailey's patience with FIGG began to wear thin at a hearing last month.
“Where are these text messages?” she demanded then. “What is going on with these text messages and why don’t I have them” months after they were sought in pretrial discovery?
After FIGG requested another 90-day delay, Bailey had had enough and ordered FIGG to present Pate and testimony on the mystery of the soggy cellphone at the hearing Wednesday.
Family of FIU Bridge Collapse Victim Remembers Daughter
NBC 6's Andrea Cruz has more from the family of a student at the school who was one of six killed just one year ago.
Fiu Bridge Collapse Cause
(Published Friday, March 15, 2019)Pate, the engineer of record, led FIGG’s technical design for the bridge and is the same engineer who left a voicemail two days before the collapse informing FDOT the bridge was cracking and “obviously some repairs or whatever will have to be done, but from a safety perspective we don’t see that there’s any issue there.”
He testified he did not delete any texts or photos related to the FIU project, that he did not back them up to a cloud, and that he did not author substantive texts about or take any photos of the project.
Text messages recovered from other FIGG phones, described in previously unreleased court documents obtained by NBC6 Investigators, reveal Pate’s opinions as the bridge was cracking apart and how alarmed some at FIGG were.
Change Made to Location Where FIU Bridge was Supported During Move Into Place
The disaster that killed six people on Southwest Eighth Street at 1:47 p.m. on that warm, clear Thursday is a construction failure borne of design errors and what appears to be a misguided attempt to address them by adding tension to a critical, failing truss without closing the road below.
(Published Friday, March 15, 2019)On the same day he called FDOT, Pate was “still not clear on why (cracking) happened,” one FIGG engineer texted another.
“Oh wow. Sounds serious,” engineer Erica Hango responded.
“Don’t you worry,” replied fellow engineer Eddy Leon, adding Pate was going to travel from Tallahassee to Miami for a meeting “just to calm everybody down.”
FIU Bridge Collapse Victim's Family Still Coping
NBC 6's Tony Pipitone speaks to the family of Alexa Duran, who died after a pedestrian bridge above her at FIU collapsed.
(Published Friday, March 15, 2019)But at that meeting two days later, convened just hours before the collapse on March 15, 2018, not everyone was calm as engineers discussed FIGG’s plan to address the cracking.
When questions arose, FIGG assured the others there was no concern with safety, according to minutes prepared for FIU by its construction engineering and inspection contractor, Bolton Perez & Associates.
But FIGG submitted what it calls “corrected minutes” to the National Transportation Safety Board that paint a somewhat different picture.
Insurance Report Lists Problems With Move of FIU Bridge
NBC 6's Tony Pipitone reveals another problem with the FIU bridge's move that happened days before the collapse.
(Published Friday, March 15, 2019)Attorneys for the Louis Berger Group, hired to double-check FIGG’s engineering work before any construction would take place, say FIGG’s minutes omit key facts – part, they say, of an effort by FIGG to minimize its responsibility for the events that led to the bridge collapsing, killing six.
Among the discrepancies Louis Berger cited between the FIGG and BP&A minutes, revealed here for the first time publicly:
- FIGG failed to mention that BP&A asked at the meeting whether FIGG’s repair plan had been reviewed by Louis Berger or anyone else. A FIGG executive “was involved in the decision to omit this reference of the need to peer review and involve Louis Berger,” the pleadings state.
- While BP&A’s minutes say FIGG assured the others there was “no concern with safety,” FIGG’s minutes instead say “no one expressed concern with safety.” Louis Berger’s lawyers argue there’s no evidence any “party other than FIGG offered a view on the safety of the bridge.”
- Asked whether “temporary shoring” would be needed, the BP&A minutes quote FIGG as saying “it was not necessary” to shore up the bridge during repairs. But FIGG’s minutes limited discussion of shoring to BP&A and the general contractor, Munilla Construction Management, saying those firms discussed “additional steps” and “potential options to implement in order to add reserve strength.”
- FIGG tried to minimize its knowledge of the severity of the cracking, saying in its minutes its engineers found the cracks were “more noticeable” in person that morning than they did when previously viewing photographs. The BP&A minutes quoted FIGG as saying the cracks were “more significant in person.”
- FIGG tried in its minutes to downplay its role during and after the move of the span from its roadside construction area onto a pylon and pier built on the north and south sides of SW Eighth St. BP&A’s minutes state it and FIGG inspected the bridge after the move was complete and it “showed nothing.” But FIGG’s minutes say it acted in only an “observing role” during the move and that BP&A did the inspection. In an email, though, a FIGG executive states the firm “did not observe” the cracking during its “inspection of the main span.”
Louis Berger cited those examples as part of its effort to persuade Judge Bailey to give it access to the draft minutes and communications FIGG and its lawyers created as it developed the “corrected minutes,” which were sent to NTSB six weeks after the collapse.
FIGG claims those records cannot be seen by others because they are privileged work product, created in consultation with its lawyers in anticipation of litigation.
Judge Bailey decided to review the underlying materials herself before deciding if FIGG made “any kind of factual alteration” in its drafts. If so, she said, it is possible she could override the privilege and allow others to see what FIGG and its attorneys were doing in preparing their version of the meeting.
Louis Berger has not yet seen the drafts and communications, but based on what it has seen in discovery, it is saying it appears FIGG did alter the facts.
“A comparison of the corrected minutes to contemporaneous handwritten meeting notes of FIGG employees and other contemporaneous documents confirm that FIGG counsel likely changed or permitted changes to the facts that resulted in corrected minutes that were not fully faithful to what transpired at the March 15 meeting regarding the cracking,” wrote Louis Berger’s attorney.
FIGG has responded in court papers to Louis Berger’s arguments, but has submitted them as confidential court documents and they are not available to the public. Its attorneys declined to comment on the matter.
Louis Berger’s attorneys, though, say they have “no confidence or faith in whatever” FIGG’s attorneys said in court last month, citing the damaged cell phone and saying they are “very skeptical about where Mr. Pate’s phone is, what happened to it.”
They asked Bailey to order FIGG to turn over all records it has on efforts to retrieve data from the phone and to order testimony from a FIGG computer specialist who worked on the issue.
The judge said she would decide what, if any, actions to take against FIGG after further review.
Bailey is overseeing 20 lawsuits filed by the families of those who died and others who claim they were victims of the collapse.
So far, mediation has failed to produce any settlements in the state court actions, although MCM’s bankruptcy has produced a $42 million pool of insurance money that will be distributed among victims under the auspices of the federal bankruptcy court.
The remaining defendants in state court will soon be allowed to file claims against each other, as the firms involved in the project seek to deflect blame before a judge or jury decides how responsible each party may be in the collapse.
As the case moves toward full litigation mode, Louis Berger is aggressively challenging FIGG – the firm whose engineering work it was supposed to double-check.
Attorneys for Louis Berger have said in court the firm had no idea that, after cracking was observed on the bridge, FIGG had ordered re-stressing post-tension bars that ran through a diagonal truss that was cracking. That procedure was underway when the bridge collapsed.
Pate had already left the worksite and was heading back to FIGG headquarters in Tallahassee a half hour before disaster struck when he texted his boss, firm owner Linda Figg: “Meeting went pretty well. FDOT and FIU were represented. Our attendance and information were appreciated. We will be working on some additional ideas to better the current situations. I’ll get you more details when I get back to the office.”
That text was recovered from Figg’s phone, but any other communications Pate had with others outside FIGG may be forever lost to the water damage his phone suffered.
Get the latest from NBC 6 anywhere, anytime
Download the App
Available for IOS and AndroidFollow NBC 6
TwitterFacebookInstagram